Según la alcaldía, las instalaciones actuales no tienen capacidad para atender la demanda ni prestar servicios a toda la población.

Por Carmen Valle
Según el ministerio de Salud, en San Miguel Panán, Suchitepéquez, el único establecimiento público con atención médica es un puesto de salud ubicado en el casco urbano, a un lado de la municipalidad. Para ampliar la atención a los vecinos, la alcaldía hará uno nuevo por Q7 millones 232 mil.
Los puestos de Salud son calificados por la cartera como primer nivel de atención. Por lo tanto, en ellos solo se tratan resfriados, gripes y enfermedades gastrointestinales leves. Según los empleados de la comuna, por esa razón las instalaciones actuales no tienen área para emergencias, traumatología o pediatría y cuando se requiere atención especializada los habitantes deben viajar a otras ciudades.
Sin embargo, de los 29 establecimientos médicos en todo el departamento, 28 son puestos de Salud con las mismas facultades que el de San Miguel Panán. El único en diferenciarse es el hospital nacional, ubicado en Mazatenango. Entre ambos lugares hay 18 kilómetros e ir de un sitio a otro toma al menos 43 minutos en carro porque existen varios caminos de terracería.
Laura Sosa, la presidente del consejo comunitario de desarrollo, explica que la falta de capacidad hospitalaria en su ciudad arriesga la salud de los vecinos porque propicia enfermedades sin personal médico para atenderlas. Por esa razón, ella solicitó al concejo municipal construir el nuevo centro, y después de ocho meses se adjudicó un concurso para hacerlo.
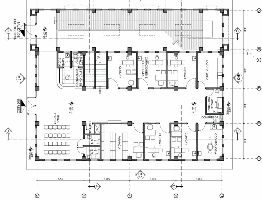
La obra contará con insumos y espacio necesarios para atender traumas y emergencias, consultas de rutina, odontología y farmacia. También se especializará en niños, bebés y partos. Tendrá dos plantas y sus planos ya fueron aprobados por la unidad de planificación estratégica de Salud.

De acuerdo con el plan de desarrollo municipal, uno de los objetivos en esa ciudad debe ser reducir la mortalidad materna, porque aunque la tasa es menores de los últimos 30 años, sucede en 62 madres por cada 100 mil nacidos vivos. Además de mejorar instalaciones de salud, se lee en el documento, uno de los planes es reclutar y entrenar a cada vez más comadronas, pues solo hay siete. Además, se propone reconocer su trabajo a través de estipendios y equipo.
La inversión de la comuna se pagará a la Constructora VIP, representada por José Víctor Ixcajoc Porras. Esta comenzó a proveer a la municipalidad de San Miguel Panán en octubre de 2022 con el mejoramiento de una escuela por Q292 mil y la construcción de un muro perimetral por Q369 mil. Es la única institución del Estado con la cual ha tenido contratos, registra Guatecompras.
Para saber cuándo comenzará a operar el nuevo centro de Salud, Ojoconmipisto intentó contactar al alcalde Gilberto Rocael Arauz Cal, quien ocupa el cargo por primera vez, pero no respondió las llamadas. Tampoco lo hizo el director de planificación, Mario Ramírez Bautista. Aun así, el Sistema Nacional de Inversión Pública indica que estará listo en 11 meses.