El proyecto de Q1.3 millones incluye un pozo y un cuarto de control, pero no funciona, aún no instalan el tanque elevado. Esperan comenzar a construir en septiembre.

Perforación de pozo caserío Colombia, La Gomera. Foto: SNIP.
Por German Carranza
Ubicado a 320 metros del casco urbano de La Gomera, Escuintla, el caserío Colombia cuenta con un sistema de agua potable recién construido. La obra se financió con fondos de los Consejos de Desarrollo (Q1.3 millones), la municipalidad aportó Q1 mil y el cocode Q500.
El proyecto consistió en perforar un pozo de 700 pies de profundidad, construir una caseta de bombeo, instalar postes y acometida eléctrica, y equipar el pozo mecánico. Sin embargo, no incluyó un tanque elevado, por lo que no puede funcionar.
Proceso de adjudicación
Constructora San Bernardino, propiedad de Martín Ajú Mucia, fue la única empresa que participó en la licitación. Se le adjudicó la obra por Q1 millón 392 mil 250.
Ajú Mucia es proveedor del Estado desde 2009. Según Guatecompras, registra 365 adjudicaciones que suman Q123.9 millones. Actualmente tiene ocho contratos vigentes con tres municipalidades y con el Ministerio de Comunicaciones, Infraestructura y Vivienda.
Sus principales clientes son las alcaldías, con 154 contratos, seguida por el Fondo de Desarrollo Indígena Guatemalteco, Empornac, Indeca y el ministerio.
Según el alcalde Héctor Hugo Cardona Morales, que está en su primer año de gestión y fue electo con el partido Vamos, la misma empresa constructora instalará el tanque elevado. Esta vez, financiado con fondos municipales.
Se le consultó sobre el proceso de contratación, pero este aún no comienza.
“Estamos esperando que la empresa eléctrica instale el transformador y se hagan las conexiones, para que comiencen a trabajar” dijo.

Caseta de bombeo que aloja el tablero de control del pozo mecánico. Foto: German Carranza.
Con proyecto, pero sin agua
Las 80 familias que habitan el caserío, unas 350 personas, siguen abasteciéndose con pozos artesanales.
Cardona Morales explicó que usar los pozos artesanales es un riesgo, porque el agua tiene heces. Las fosas sépticas están muy cerca y eso provoca que se contamine.
El sistema de agua tiene una vida útil estimada de 20 años y proyecta en el futuro atender a unas 120 familias, unas 820 personas.
La obra está destinada a los vecinos del caserío San Jerónimo, pero, según Cardona Morales, se ejecutó en el caserío Colombia para que también se beneficien del servicio.

Pozo mecánico que alimentará al tanque elevado. Foto: German Carranza.
Proyecto en partes
En noviembre de 2024, la municipalidad inició la instalación de tuberías de agua para los caseríos San Jerónimo y Colombia, un proyecto financiado con recursos propios. Estas tuberías conducirán el agua del pozo, que aún no está en funcionamiento.
Según registros de Guatecompras, ese año la comuna realizó tres compras de baja cuantía. Dos para adquisición de materiales (E551831847 y E551854731) por Q46 mil 125.98 y una por arrendamiento de retroexcavadora (E553787675) por Q24 mil 875. En total, pagó Q71 mil.

Fontaneros municipales trabajando en la introducción de la tubería que llevará agua a los caseríos de San Jerónimo y Colombia. Foto: municipalidad.
Este 2025 se comenzó con la perforación del pozo y se espera la construcción del tanque elevado.
Según registros de Guatecompras, el 2 de agosto de 2024, el director municipal de planificación solicitó el estudio hidrogeológico y el instrumento ambiental para el proyecto. Ese mismo día también requirió la elaboración del análisis y diseño del tanque elevado y la caseta. Juan Carlos Alexander Tacam Menchú elaboró ambos estudios por Q28 mil.
Aunque la alcaldía ya contaba con los estudios, no incluyó el tanque elevado, estructura indispensable para que el proyecto funcione
Según el edil, Cardona Morales, son dos proyectos distintos; cada uno tiene tiene diferente papelería.
El pozo se ejecutó con fondos ordinarios de los Consejos de Desarrollo y el tanque elevado se ejecutará con fondos municipales.
La municipalidad priorizó el proyecto
El cocode del caserío Colombia solicitó el proyecto el 9 de agosto de 2024, siete días después de que el director municipal de planificación pidiera los estudios técnicos.
En asamblea comunitaria el cocode es el encargado de priorizar los proyectos, luego los presenta ante el comude para su ejecución. Estos pueden financiarse con fondos de los Consejos de Desarrollo o con recursos propios de la municipalidad.
Según el alcalde ese es el procedimiento normal, pero hay cocodes que no se preocupan por su comunidad. “Yo soy gomerano de nacimiento y sé las necesidades que hay en cada lugar, bueno, dije, aquí vamos a hacer un pozo”.
“Yo tengo un compromiso con el pueblo. “Antes de salir quiero hacer como mínimo de seis a ocho pozos”.

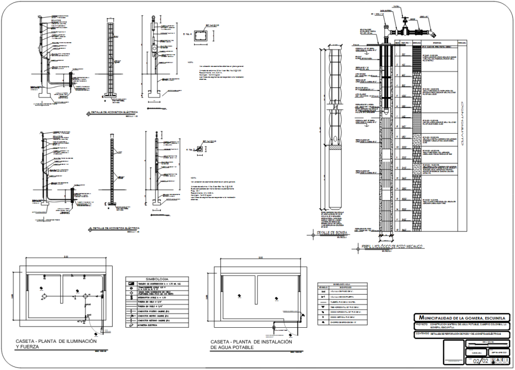
Plano de detalles perforación de pozo y acometidas eléctricas, no incluye el tanque elevado. Imagen: SNIP
Costo de operación
La municipalidad paga entre Q18 y Q23 mil por pozo. El precio que pagan los vecinos por el agua es de Q25 mensuales.
Cardona Morales dice que, aunque el costo es bajo, existen usuarios que tienen el servicio y no lo pagan: “Deben años de años”.
La municipalidad realiza descuentos para motivar a los usuarios a que cancele sus deudas, “muchos si pagan, pero hay otros que siguen con la deuda”.