Emitió un comunicado luego de varias publicaciones periodísticas acerca del crecimiento de proyectos sobre todo uno en San Juan del Obispo que no cuenta con permiso de la municipalidad.

Por Julio Sicán
La misma que declaró en 1979 Patrimonio Cultural de la Humanidad a La Antigua Guatemala, se pronunció por la construcción de una obra en San Juan del Obispo y otros desarrollos urbanos alrededor. Sí, la Organización de las Naciones Unidas para la Educación, la Ciencia y la Cultura (UNESCO) está preocupada, así lo indicó a través de un comunicado.
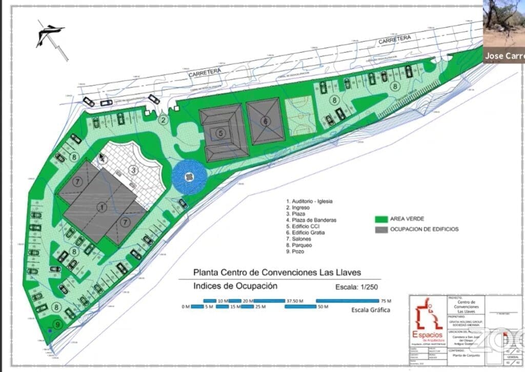
Se basó en la evaluación del Consejo Nacional para la Protección de La Antigua Guatemala (CNPAG), sobre el Centro de Convenciones Las Llaves al cual negó los permisos de construcción debido al impacto vial, cultural y natural. Según los planos se erigirá un templo evangélico en la entrada principal de la aldea situada al sur de la ciudad colonial.
Esta área forma parte de un corredor patrimonial y es una “Isla de conservación” incluida en la declaratoria de La Antigua como Patrimonio Mundial, cita el comunicado.
El Conservador de la Ciudad, Javier Quiñónez Guzmán, a través de redes sociales recordó que en 2019 recibieron un anteproyecto para evaluarlo y opinar por parte del CNPAG sobre el Gratia Holding Group, S.A. ubicado en el kilómetro 4, No.1 Carretera a San Juan del Obispo, La Antigua Guatemala.
El Consejo no aprobó el proyecto debido a su masividad lo cual generaría un alto impacto al entorno y con ello contravenir el articulo 1 de la Ley Protectora de La Antigua Guatemala: “se declara de utilidad pública y de interés nacional la protección, conservación y restauración de La Antigua Guatemala y áreas circundantes que integran con ella una sola unidad de paisaje, cultura y expresión artística”.
Los desarrolladores fueron notificados el 13 de octubre de 2019. En un comunicado las autoridades municipales aseguraron que el expediente está en evaluación, por lo que aún no ha sido autorizado.

Otros proyectos
La Asociación Nacional del Festival del Níspero, de San Juan del Obispo, denunció otros dos proyectos de urbanización en proceso de obtener licencia de construcción: Casa Suralto y Green World en las faldas del volcán de Agua. UNESCO también los menciona.
La asociación solicitó a las autoridades municipales y de conservación los estudios de impacto ambiental y de tránsito de los referidos proyectos, También una proyección a 36 meses de la carga vehicular en la zona sur del municipio, el estado de los drenajes de la aldea y de la red de distribución del agua entubada.
En tanto, los Consejos Comunitarios de Desarrollo (cocode) y alcaldes auxiliares de San Pedro Las Huertas, San Gaspar Vivar y Santa Catarina Bobadilla, exigen que no se aprueben las licencias a favor de dos proyectos: Los Apóstoles y Portal de Las Huertas en sus territorios.
Falta un POT
En el comunicado, la UNESCO señala que esta situación se debe a la falta de un Plan de Ordenamiento Territorial (POT) “apropiado, consensuado y aprobado para una ciudad con las características y valores culturales que posee La antigua Guatemala”.
Insta a los desarrolladores urbanos a realizar los procesos legales y análisis del impacto en la zona, y a la muncipalidad a contar con su POT y un Plan de Gestión para la ciudad y sus islas de conservación. “Que permitan orientaciones claras para la planificación y encontrar el equilibrio adecuado para el desarrollo económico y conservación del Patrimonio de la Humanidad”.
Hugo Castillo, vocero municipal de La Antigua Guatemala, anunció que en las próximas horas las autoridades podrían pronunciarse a través de un comunicado.